
UPDATED:
Key Details
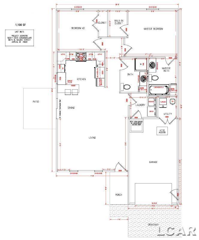
Property Type Single Family Home, Condo
Sub Type Condominium
Listing Status Active
Purchase Type For Sale
Square Footage 1,100 sqft
Price per Sqft $236
Subdivision Scott Cove Condominiums
MLS Listing ID 56050200674
Style Ranch
Bedrooms 2
Full Baths 2
HOA Fees $120/mo
Year Built 2026
Property Sub-Type Condominium
Property Description
Location
State MI
County Lenawee
Area Area13092Adrian
Interior
Interior Features HighSpeedInternet, WalkInClosets
Heating Forced Air, Natural Gas
Cooling Ceiling Fans, Central Air
Fireplace No
Exterior
Parking Features Assigned1Space, OneCarGarage, Attached, Garage, GarageDoorOpener
Garage Spaces 1.0
Pool None
View Y/N No
Garage true
Building
Lot Description CityLot
Foundation CrawlSpace
Sewer Public Sewer
Water Public
New Construction Yes
Schools
School District Adrian
Others
Acceptable Financing Cash, Conventional
Listing Terms Cash, Conventional
Special Listing Condition ShortSaleNo, Standard
Pets Allowed Cats Ok, Dogs Ok

Nearby School & Business
Get More Information

Sandra Walus
Broker Associate | License ID: 6502347609
Broker Associate License ID: 6502347609



