
UPDATED:
Key Details
Property Type Single Family Home, Condo
Sub Type Condominium
Listing Status Active
Purchase Type For Sale
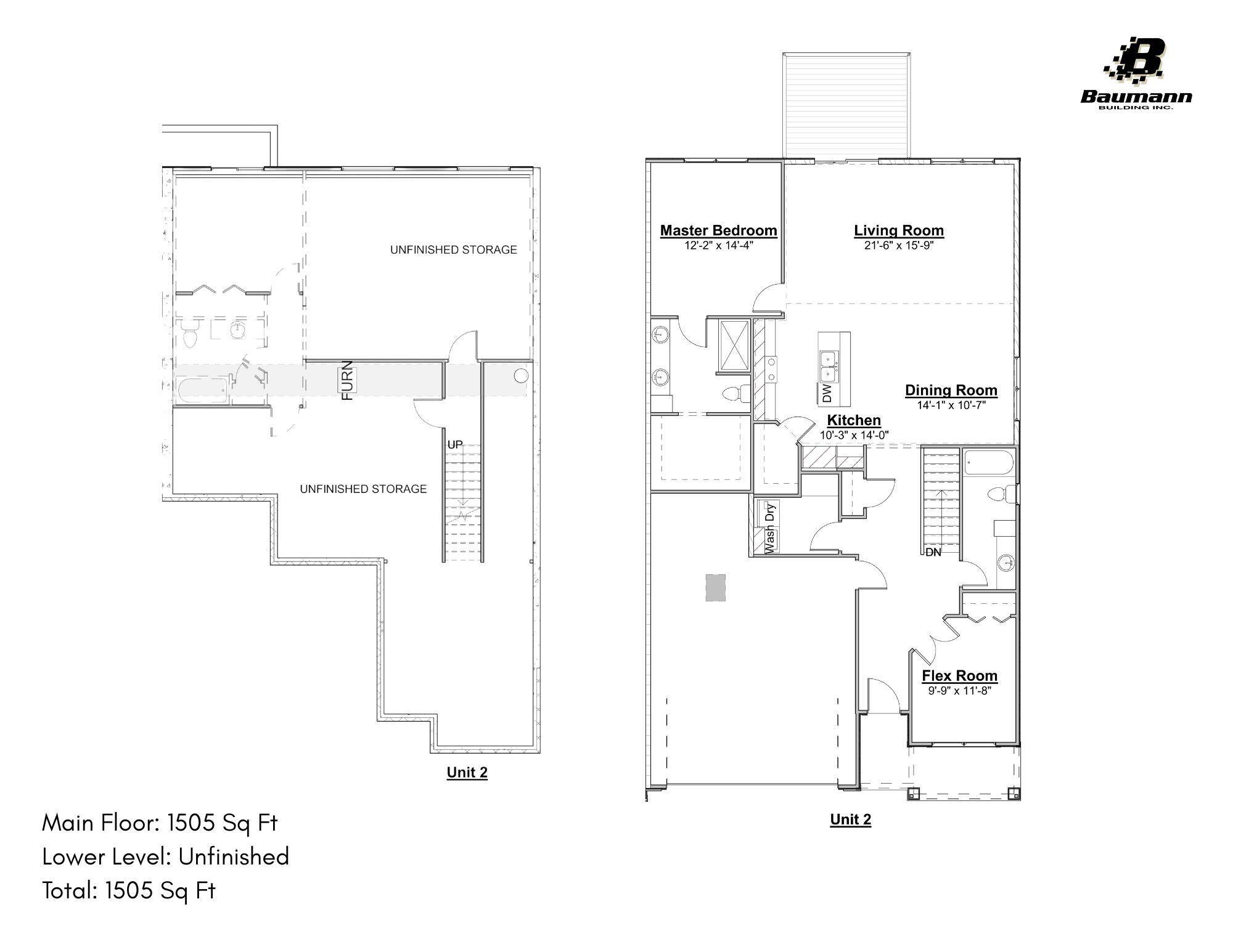
Square Footage 1,505 sqft
Price per Sqft $276
Subdivision Eagle Meadows
MLS Listing ID 71026017036
Style Ranch
Bedrooms 2
Full Baths 2
HOA Fees $250/mo
Year Built 2026
Property Sub-Type Condominium
Property Description
Location
State MI
County Ottawa
Area Area70151Hollandtwp
Rooms
Basement Daylight, Full
Interior
Interior Features Pantry
Heating Forced Air, Natural Gas
Cooling Central Air
Fireplaces Type GasLog, LivingRoom
Fireplace Yes
Laundry LaundryRoom, MainLevel
Exterior
Parking Features Attached, GarageDoorOpener
Garage Spaces 2.0
Waterfront Description Pond, PrivateWaterFrontage, WaterAccessRights
View Y/N Yes
View Water
Roof Type Shingle
Garage true
Building
Lot Description Sprinklers
Foundation Basement
Sewer Public Sewer
Water Public
New Construction Yes
Schools
School District Zeeland
Others
Acceptable Financing Cash, Conventional, FHA, VaLoan
Listing Terms Cash, Conventional, FHA, VaLoan
Virtual Tour https://www.propertypanorama.com/instaview/wmlar/26017036

Nearby School & Business
Get More Information

Sandra Walus
Broker Associate | License ID: 6502347609
Broker Associate License ID: 6502347609



